Modificaciones MTO – Modificación en el transcurso de la obra – Cambio de la licencia de obra durante la construcción Durante la construcción, es frecuente que los promotores o urbanistas…
Modificaciones MTO – Modificación en el transcurso de la obra – Cambio de la licencia de obra durante la construcción Durante la construcción, es frecuente que los promotores o urbanistas…
Teilbereiche der Baugenehmigung Licencia urbanística, licencia de obra und licencia de primera ocupación: Die drei Bestandteile der Licencia de Obra Mayor Wer auf Mallorca ein Haus bauen oder umfassend sanieren…
Die Baugenehmigung Die Licencia de Obra Mayor – und die wichtigsten Kennziffern auf Mallorca Wer auf Mallorca neu bauen oder ein bestehendes Haus grundlegend umbauen möchte, benötigt eine Licencia de…
Bau- und Verwaltungsrecht Baurecht auf den Balearen – und im Vergleich zu Deutschland: Warum in jeder Gemeinde andere Regeln gelten Auch wenn die Balearen auf Landesebene (Comunitat autònoma de les…
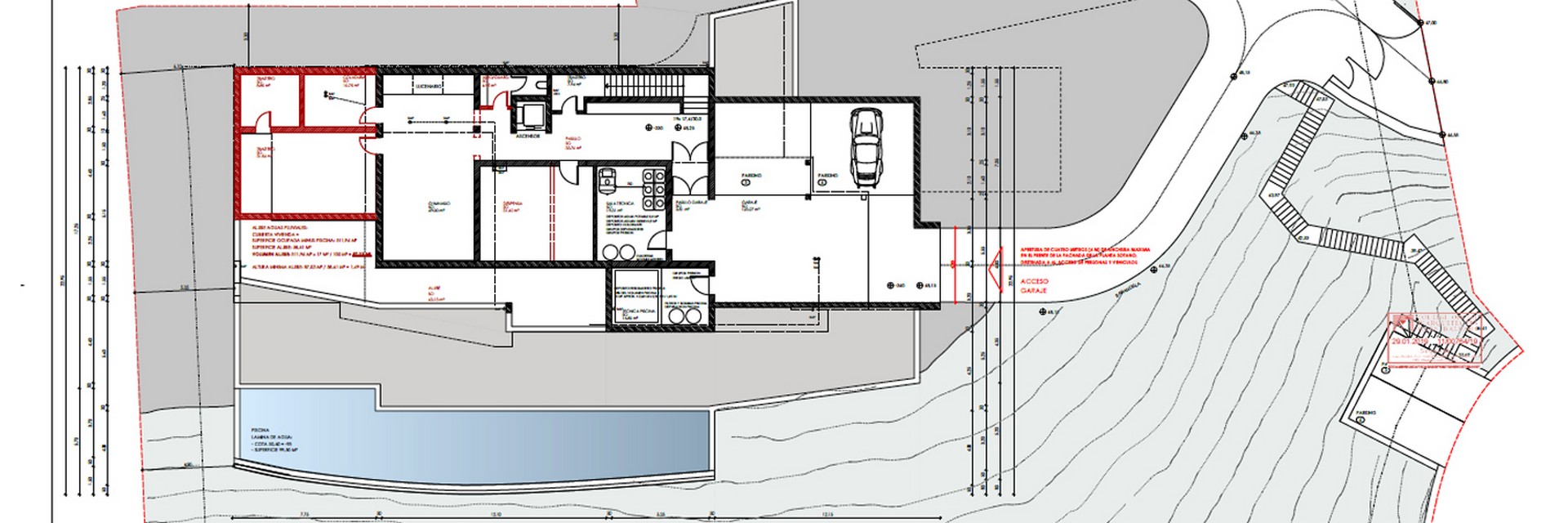
Bauen am Hang Wie Topografie, Höhenreferenzen und Zuwegung die Planung bestimmen Hanglagen auf Mallorca bieten oft die spektakulärsten Bauplätze – mit unverbaubarem Meerblick, beeindruckenden Bergpanoramen oder idyllischem Talblick. Doch diese…